СЕРИЯ ISIS
Краткая характеристика
ISIS Recover - это изолированная рекуперационная установка, предназначенная для подачи воздуха и рекуперации тепла отсасываемого воздуха (из интерьера) к свежему воздуху (в интерьер) без смешивания. Установка предназначена для проветривания офисов, квартир, магазинов и других помещений небольших объёмов. Эффективность передачи тепла достигает 60%.
Эксплуатация должна осуществлятся во внутренних закрытых сухих помещениях с внешней температурой от 0°C до +40°C с относительной влажностью до 80%. Температура подаваемого воздуха должна быть в интервале от -20°C до 40°C. Изделие предназначено для подачи воздуха без грубой пыли, жиров, химических испарений и других загрязнений. Корпус ISIS Recover
изготовлен из сэндвич панелей, покрыт белым лаком (9010). Степень электрической защиты устройства IP20. Проект вентиляционной установки должен всегда выполняться проектировщиком систем вентиляции.
УСТАНОВКА И МОНТАЖ
Устройство предназначено для установки в вертикальном положении. Это единственное правильное положение, в котором следует устанавливать устройство. Устройство необходимо установить так, чтобы осталось свободное пространство, достаточное для проведения технического обслуживания, сервиса или демонтажа.
Расшифровка обозначений

Рисунок №1 Функциональная схема
Рисунок №2 Xарактеристика мощности
Рисунок №3 Шумовые характеристики
Рисунок №4 Эффективность рекуперации
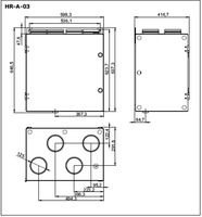
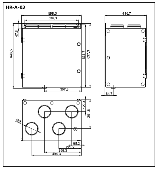
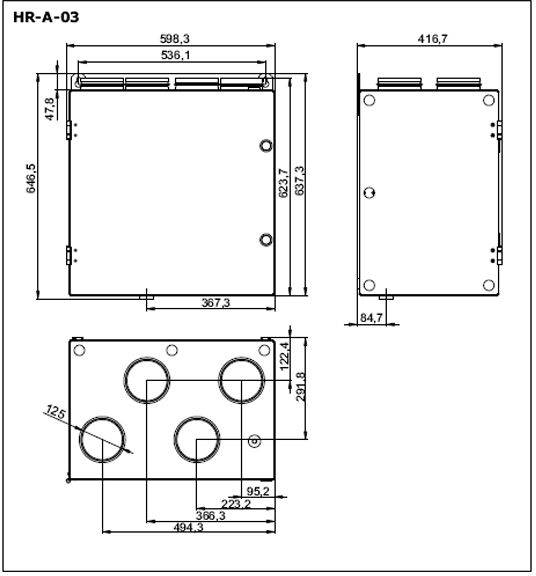
Рисунок №5 Габаритные размеры
Рисунок №6 Расчёт высоты сифона
Технические характеристики
| Мощность на обогрев | 1.8 кВт |
| Воздухообмен | 350.00 м<sup>3</sup>/час |
| Нагреватель | рекуператор |
| Площадь | 15 м<sup>2</sup> |
| Способ установки | Вертикально |
| Питание | 230/50/1 в/Гц/Ф |
| Габариты | 598x647x417 мм |
| Масса | 39.00 кг |
| Класс защиты | IP 20 |