FG - ПРИТОЧНО-ВЫТЯЖНАЯ УСТАНОВКА
Приточно-вытяжная установка FG в компактном корпусе
Небольшие габариты
Оптимизированная конструкция из листовой стали делает устройство крайне компактным. Безрамная конструкция из листовой стали не имеет мостиков холода, поэтому она гладкая внутри, что существенно облегчает чистку. Все конструктивные элементы разборны
Малое падение давления внутри прибора
Большие поверхности всех встроенных компонентов, через которые проходит поток воздуха, обеспечивает, несмотря на небольшие внешние размеры, малое падение давления внутри системы
Двигатели
Вентиляторы поставляются с двигателями, управляемыми по напряжению 230 В.
Большие активные поверхности
Фильтр, клапаны и теплообменник выполнены без рамы. Малое падение давления внутри системы и следовательно, экономия электроэнергии
Легкость чистки
Гладкость внутренних стенок облегчает чистку.
Высококачественный корпус
Корпус изолирован минеральной ватой толщиной 40 мм. (Установка, монтируемая между перекрытиями 30мм)
Технические характеристики
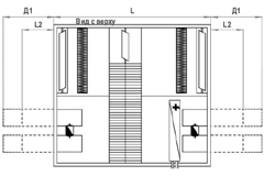
Расшифровка значений на схемах
Ш - 1927
В - 367
L - 1477
Д1 - 475
L2 - 300
| Воздухообмен | 2400.00 м<sup>3</sup>/час |
| Нагреватель | водяной |
| Питание | 230/50/1 в/Гц/Ф |
| Габариты | 1927x367x1477 мм |
| Масса | 285.00 кг |