ОПИСАНИЕ
Применение вентиляторов Ех
Взрывозащищенные, полностью регулируемые канальные радиальные вентиляторы низкого давления типа RР и RQ в исполнении Ех могут использоваться как в простых вентиляционных, так и в более сложных системах кондиционирования воздуха. Благодаря специальной конструкции, препятствующей возникновению механических искр согласно ЕN 13463-1, ЕN 13463-5 а также исполнению электромотора „е" согласно ЕN 50014, вентиляторы предназначены для использования во взрывоопасной среде.
Условия эксплуатации, установка
Вентиляторы предназначены для внутреннего и наружного применения, для перемещения воздуха без твердых, волокнистых, клеящихся, агрессивных и взрывоопасных примесей, а также химических веществ, способствующих коррозии или химическому разложению алюминия и цинка. Допустимая температура перемещаемого воздуха лежит в пределах от -20 до +40°С. С точки зрения классификации взрывоопасных помещений согласно ЕN 60079-10 и ЕN 60079-14, вентиляторы предназначены для установки в среде зона 1 и для удаления воздуха из среды зона 1, их также можно использовать в помещениях с более низкой степенью опасности, т.е. зона 2. Взрывозащищенные вентиляторы RР и RQ в исполнении „е" согласно норме ЕN 60079-0 относятся к группе II (электрооборудование для взрывоопасных помещений, кроме шахт с содержанием метана), температурному классу ТЗ и обозначаются ЕЕх е II ТЗ. Вентиляторы непосредственно обозначаются знаком взрывобезопасности II 2 G с ТЗ. Вентиляторы могут работать в любом положении. При размещении вентиляторов RР Ех под потолком, для доступа к клеммной коробке и мотору желательно устанавливать вентилятор крышкой мотора вниз. При высоком влагосодержании, когда внутри вентилятора может образовываться конденсат, рекомендуется устанавливать вентилятор миской вверх. Для снижения потерь давления в системе, на выходе вентилятора рекомендуется монтировать участок прямого воздуховода длиной от 1 до 1,5 м. Вентиляторы RQ Ех чаще всего устанавливаются в положение с горизонтальным расположением оси вращения электромотора (хотя и не обязательно). Четырехугольные боковые стенки вентилятора одновременно служат в качестве ножек для укрепления на основание с анкерными болтами. Вентилятор можно поворачивать на 90° в четырех направлениях.
Типоразмеры
Вентиляторы RР Ех выпускаются в 6 типоразмерах в зависимости от размеров соединительного фланца АхВ. Вентиляторы RQ Ех выпускаются в 3 типоразмерах в зависимости от диаметра рабочего колеса, см. рис 1. Стандартно выпускаемые типоразмеры взрывозащищенных вентиляторов позволяют проектировщикам оптимизировать все параметры при выборе вент-установок с расходом воздуха до 5.800 м3/ч.
Материалы
Корпус вентилятора и соединительные фланцы стандартно изготавливаются из оцинкованного листа, под заказ из нержавеющей стали. Рабочие колеса изготавливаются из оцинкованного листа, диффузоры из алюминия, электромоторы из сплавов алюминия. Конструкция мотора состоит из стальных, медных и пластмассовых элементов. Все материалы тщательно контролируются и обеспечивают длительный срок службы и надежность работы вентиляторов.
Рабочие колеса
Рабочие колеса вентиляторов RР имеют вперед загнутые лопатки. Направление вращения при подключении электромотора должно контролироваться. Рабочие колеса вентиляторов RР и RQ должны вращаться только влево, против часовой стрелки (при виде на контрольное отверстие в миске мотора). Контрольное отверстие в миске закрыто резиновой заглушкой. Рабочие колеса тщательно статически и динамически сбалансированы совместно с ротором мотора.
Электромоторы
В качестве привода вентилятора применены асинхронные 1-фазные и 3-фазные компактные электромоторы с внешним ротором и омическим якорем с соответствующей мощности и количеством оборотов, утвержденные согласно директивы 94/9/ЕS (АТЕХ), см. рис 2. Электромоторы находятся внутри рабочего колеса, что позволяет охлаждать их при работе поступающим воздухом. Высококачественные, самосмазывающиеся
шарикоподшипники мотора в защищенном корпусе позволяют вентиляторам достичь рабочего ресурса более 40.000 часов без профилактики. Изоляция корпуса электромотора соответствует IР 44, класс изоляции F. Обмотки имеют дополнительную защиту от влажности. Моторы отличаются малым пусковым током.
Электромонтаж
Электрическое подключение вентилятора выведено на специальную взрывозащищенную клеммную коробку с изоляцией IР 66. Внимание! Электромоторы нельзя подключать по схеме треугольника. Они всегда подключаются по схеме звезды.
Защита электромоторов
У всех моторов стандартно обеспечен постоянный контроль его внутренней температуры. Внутреннюю температуру регистрируют миниатюрные температурные датчики (термисторы), которые находятся в обмотке электромотора. Термисторы должны быть подключены к термисторному реле, которое при достижении температуры 130°С размыкает управляющий контур защитного контактора. Указанный способ защиты предохраняет мотор от внешнего влияния. Например, от перегрузки, обрыва одной фазы сети, внезапной остановки, а также от чрезмерной температуры перемещаемого воздуха. Термозащита, при ее правильном подключении, является достаточно комплексной и надежной. Вентиляторы RР и RQ в исполнении Ех утверждены авторизованной лабораторией ЕS 1026 -физико-техническим институтом Острава-Радванице для их эксплуатации при подключении с предписанной термозащитой. Не допускается защищать электромоторы вентиляторов при помощи обычных токоограничивающих предохранительных элементов!
Регулирование оборотов
У данных вентиляторов можно использовать несколько способов регулирования, однако в системе \/епtо используется только регулирование по напряжению. Мощность вентиляторов регулируется при помощи изменения числа оборотов изменением напряжения на клеммах мотора. У вентиляторов RР и RQ Ех можно использовать также плавное регулирование, однако на практике чаще используются регуляторы со ступенчатым регулированием оборотов.
Пятиступенчатое регулирование (трансформатор)
Регулирование напряжением является наиболее выгодным технически и эксплуатационно. Не возникает электропомех, различных шумов и вибрации мотора, уменьшается его нагрев.
Ступенчатыми регуляторами напряжения ТRN можно регулировать производительность вентилятора на пяти ступенях с шагом примерно 20%, чему соответствует пять кривых зависимости давления и производительности на графике рабочих характеристик каждого вентилятора.
Электромоторы вентиляторов RР могут эксплуатироваться в пределах от 25% до 100% номинального напряжения. В табл.1 представлена зависимость
величины выходного напряжения от установленной ступени регулятора.
Вентиляторы в исполнении Ех поставляются только с трехфазными электромоторами. Для регулирования оборотов (мощности) предназначены трехфазные регуляторы ТRN или ТRRD.
Регуляторы ТRN выпускаются в четырех типоразмерах в зависимости от величины тока ТRN 2D, ТRN 4D, ТRN 7N и ТRN 9N. Существует также возможность удаленного управления (при помощи командоаппарата ОRе5 или ОСm непосредственно в блоке управления, или же при помощи автоматического переключения 5-ти ступеней при помощи командоаппарата ОХе в зависимости от внешнего управляющего сигнала 0 -10 V). Регуляторы ТRN имеют встроенную защиту вентиляторов, которая активируется подключением к термисторному реле.
Более простые регуляторы ТRRD также выпускаются в четырех типоразмерах ТRRD 2, ТRRD 4, ТRRD 7 и ТRRD 9. Однако этими регуляторами нельзя управлять автоматически или дистанционно (их необходимо располагать в зоне обслуживания), также они не обеспечивают защиту вентиляторов (необходимо использовать дополнительное оборудование).
Принадлежности
Вентиляторы RP а RQ в исполнении Ех являются составной частью широкого ассортимента элементов универсально-сборной вентиляционной системы \/епtо. Выбором соответствующих элементов можно смонтировать какую угодно воздухотехническую систему, от простейшей вентиляции до сложной комфортной системы кондиционирования. При подборе оборудования необходимо учитывать, для какой среды оно предназначено.
Например, все защитные элементы вентиляторов (термисторные реле, ТRN, блоки управления) должны быть размещены во взрывобезопасной среде.
Описание и обозначение вентиляторов
На рис. 4 указана схема для типового обозначения взрывозащищенных вентиляторов RP Ех и RQ Ех в проектах и заявках.
Обозначение RQ 28-4Р Ех или RР 60-30/28-4Р Ех специфицирует тип вентилятора, рабочего колеса и электромотора.
Размеры, вес, мощность RР Ех
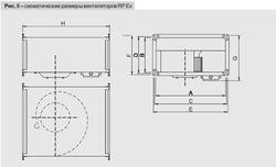
На рис. 5 и в таблице 3 указаны данные об основных размерах вентиляторов типа RР в исполнении Ех.
Технические характеристики
Рисунок №1 Типоразмеры
Рисунок №2 Рабочее колесо
Рисунок №3 Термистор
Таблица №1 Напряжение на ступенях регулирования
Рисунок №4 Типовой ключ для обозначения вентиляторов Ex
Таблица №3 Размеры вентиляторов RP EX
Рисунок №5 Схематические размеры вентиляторов RP EX
Технические характеристики
| Воздухообмен | 3195.00 м<sup>3</sup>/час |
| Способ установки | В любом положении |
| Питание | 400/50/3 в/Гц/Ф |
| Сила тока | 2.32 А |
| Потребляемая мощность | 1.30 кВт |
| Масса | 33.00 кг |
| Габариты | 600x300x642 мм |
| Напряжение | 400.00 |