Радиальные вентиляторы для прямоугольных каналов предназначены для перемещения воздуха и других невзрывоопасных газовых смесей в системах вентиляции и кондиционирования воздуха.
Вентиляторы VR представлены девятью типоразмерами, в каждом из которых доступны различные модификации, что увеличивает функциональные возможности линейки прямоугольного оборудования.
Корпус вентилятора изготовлен из оцинкованного стального листа толщиной:
Рабочие колёса из оцинкованного стального листа. В вентиляторе VR 100-50/63.4D используется «свободное» рабочее колесо с назад загнутыми лопатками, в остальных вентиляторах рабочие колёса с вперед загнутыми лопатками расположены в спиральном кожухе. Конструкция корпуса, кожуха и диффузоров позволяет получить высокие аэродинамические характеристики вентиляторов.
В качестве привода вентилятора используются компактные асинхронные однофазные и трёхфазные электродвигатели с внешним ротором и якорем с высоким омическим сопротивлением, не требующие дополнительного обслуживания. Статически и динамически сбалансированные рабочие колёса и применяемые электродвигатели позволяют достичь более 40 000 часов рабочего ресурса.
Класс изоляции: IP 54.
Конструктивно двигатель расположен в потоке перемещаемого воздуха, что способствует эффективному отводу тепла.
Электродвигатели стандартно оснащены термоконтактами, расположенными внутри обмотки. Выведенные клеммы цепи позволяют подключить внешние защищающие устройства, что обеспечивает наиболее надёжную и точную защиту при перегреве, в случае перегрузки, обрыва фазы, высокой температуры воздуха и т. п.
Производительность вентиляторов VR регулируется изменением числа оборотов электродвигателя.
Для однофазных электродвигателей рекомендуется использовать трансформаторные пятиступенчатые регуляторы оборотов, так как при их использовании отсутствует угроза возникновения электропомех, шумов и вибраций электродвигателя.
Для трёхфазных вентиляторов рекомендуется использовать частотные преобразователи, влияющие на величину частоты и напряжения.
Вентиляторы устанавливаются в любом положении непосредственно в сеть воздуховодов. Для предотвращения передачи вибраций от вентилятора к воздуховоду рекомендуется монтировать до и после вентилятора гибкие вставки.
В помещениях с высоким влагосодержанием вентилятор необходимо устанавливать клеммной коробкой вверх для предотвращения скапливания в ней конденсата.
| Воздухообмен | 1781 м<sup>3</sup>/час |
| Воздуховод | Прямоугольный |
| Сила тока | 1.1 / 1.91 А |
| Частота вращения | 1428 об/мин |
| Давление | 290 Па |
| Потребляемая мощность | 0.510 кВт |
| Масса | 19.4 кг |
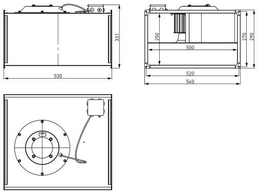
| Габариты | 530x540x331 мм |
| Класс защиты | IP 54 |
| Напряжение | 220 / 380 |