ОПИСАНИЕ
Расшифровка названия RO 40-20/25-2E
RO - Радиальный канальный вентилятор
40 - Соединительный размер А фланца
20 - Соединительный размер В фланца
25 - Диаметр рабочего колеса
2 - Количество полюсов электромотора
Е - Электромотор однофазный
Применение вентиляторов
Полностью регулируемые, низкого давления вентиляторы RО применяются для прямого монтажа в воздуховод. Они могут использоваться как в простых вентиляционных, так и в сложных системах кондиционирования воздуха. Применяются, прежде всего, для отсасывания из кухонных вытяжных шкафов. Идеально их применение с остальными элементами универсально-сборной системы \/епtо, гарантирующей взаимную совместимость и сбалансированность параметров.
Условия эксплуатации, установка
Вентиляторы предназначены для внутреннего и наружного применения, для перемещения воздуха без твердых, волокнистых, клеящихся, агрессивных и взрывоопасных примесей, а также химических веществ, способствующих коррозии или химическому разложению алюминия и цинка. При наружном применении вентиляторы необходимо окрасить защитной краской (избегая окраску заводских щитков). Допустимая температура перемещаемого воздуха находится в пределах от -15°С до +40°С (у некоторых типов +70°С. Вентиляторы RО могут работать в любом положении. Для снижения потерь давления в системе рекомендуется, монтировать на вытяжку вентилятора прямой участок воздуховода длиной 1 -1,5 мм.
Материалы
Корпус вентилятора RО и соединительные фланцы изготавливаются из оцинкованного листа. Рабочие колеса из алюминиевого листа или пластмассы, диффузоры из алюминия, электромоторы из сплавов алюминия, меди и пластмасс. Все материалы обеспечивают длительный ресурс и надежность работы вентиляторов. Рабочие колеса тщательно статически и динамически сбалансированы с мотором.
Электромоторы
В качестве привода вентилятора применены асинхронные однофазные электромоторы с внешним ротором и омическим якорем. Электромоторы находятся за рабочим колесом, что позволяет охлаждать их при работе поступающим воздухом. Высококачественные, в защищенном корпусе, самосмазывающиеся шарикоподшипники мотора позволяют вентиляторам достичь рабочего ресурса более 40.000 часов без профилактики. Изоляция корпуса электромоторов соответствует IР44, класс изоляции В. Обмотка имеет дополнительную защиту от влажности.
Электромонтаж
Однофазные моторы снабжены залитым пусковым конденсатором, укрепленным на корпусе вентилятора. Электропроводка выведена на клеммную коробку с изоляцией IР54.
Защита электромотора
У всех моторов вентиляторов RО стандартно обеспечен постоянный контроль внутренней температуры мотора. Допустимую температуру регистрируют размыкающие термоконтакты (ТК), которые уложены в обмотке электромотора. Термоконтакты - миниатюрные, реагирующие на тепло размыкающие элементы, которые после подключения в управляющую цепь защищают мотор от перегрузки и чрезмерной температуры перемещаемого воздуха.
Регулирование оборотов
Изменением числа оборотов можно регулировать мощность всех вентиляторов RО. Обороты меняются изменением напряжения на контактах мотора.
Канальные радиальные вентиляторы \/епtо RО предназначены для монтажа в воздуховод совместно с другими компонентами системы \/епtо. Вентилятор RО имеет совершенную функциональную конструкцию.
Технические характеристики
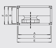
Расшифровка значений на схемах
А - 400
В - 200
С - 420
D - 220
E - 440
F - 240
G - 350
H - 500
Параметры модели вентилятора RO 40-20/25-2E
Рисунок №1 Типовой ключ для обозначения вентиляторов RO
Рисунок №3 Состав вентилятора RO
| Воздухообмен | 1199.00 м<sup>3</sup>/час |
| Воздуховод | Прямоугольный |
| Питание | 230/50/1 в/Гц/Ф |
| Сила тока | 0.78 А |
| Потребляемая мощность | 0.14 кВт |
| Масса | 12.00 кг |
| Габариты | 400x200x500 мм |
| Напряжение | 230.00 |